Припливно-витяжна установка Вентс ВУТ ЕГ є повністю готовий
вентиляційний агрегат, що забезпечує фільтрацію, подачу свіжого повітря в
приміщення і видалення забрудненого повітря. При цьому тепло витяжного повітря передається припливному повітрю через пластинчастий рекуператор.
- ціни і технічні характеристики
- застосування
- конструкція
- система автоматики
- габаритні розміри і креслення
- робочі характеристики
- паспорт установки
Продуктивність установок складає від 150 до 600 м3/год. Робочий тиск до 350 Па. Всі моделі призначені для з'єднання з круглими повітроводами номінальним діаметром 125, 150, 160, 200 мм.
Застосування
Установки призначені в основному для вентиляції котеджів, міських квартир, невеликих магазинів, кафе, ресторанів, перукарень, приватних і суспільних басейнів, невеликих офісних приміщень і можуть бути частиною вентиляційної системи великих будівель.
Конструкція і управління
Припливно-витяжна установка складається з корпусу, виконаного з оцинкованої
стали з внутрішньою тепло- і звукоізоляцією завтовшки 25 мм. Ізоляція виконана негорючим матеріалом з мінеральної вати.
Для фільтрації припливного і витяжного повітря в установці є 2 вбудованих фільтра із ступенем очищення G4 (опція G7 на притоці). Фільтр дозволяє очищати повітря від пилу, тополиного пуха, комах, листя і ін.
Установка оснащена припливним і витяжним відцентровими вентиляторами двостороннього всмоктування із заломленими вперед лопатками і вбудованим термостатом захисту з автоматичним перезапуском. Двигуни вентиляторів мають
3 швидкості, що дозволяє вибирати оптимальний режим витрати повітря. Електродвигуни і робочі колеса динамічно збалансовані в двох площинах. Кулькові підшипники кочення електродвигунів не вимагають обслуговування, термін служби складає не менше 40000 годин.
Пластинчастий рекуператор виконаний з алюмінієвих пластин. Під блоком рекуператора розташований піддон для збору і відведення конденсату.
Для експлуатації припливно-витяжної установки при низькій температурі зовнішнього повітря встановлений електрокалорифер. Якщо за допомогою рекуперації тепла не вдається досягти заданого значення температури припливного повітря, то автоматично включається калорифер і догріває повітря, що поступає в приміщення.
Припливно-витяжна установка комплектується вбудованою системою захисту рекуператора від обмерзання. В процесі роботи рекуператора в холодний період року відбувається передача тепла від теплого витяжного до холодного припливного повітря. При цьому в процесі охолоджування в рекуператорі витяжного повітря, з нього може випадати конденсат, і цей конденсат у витяжних каналах може замерзати.
Для уникнення процесу обмерзання рекуператора застосовуються електронний захист від обмерзання із застосуванням байпаса і електрокалорифера. Суть його полягає в тому, що по датчику температури відбувається відкриття заслінки байпаса і все припливне повітря проходить мимо рекуператора по обвідному каналу. На період розморожування рекуператора припливне повітря нагрівається до необхідної температури в електрокалорифері.
Під час відтавання тепле витяжне повітря прогріває рекуператор. Далі заслінка перекриває байпас, електрокалорифер вимикається, припливне повітря знову проходить і підігрівається через рекуператор і вся установка працює в звичайному режимі.
Монтаж
Припливно-витяжна установка вмонтовується на підлозі, підвішується до стелі або кріпиться на стіні за допомогою кронштейнів. Монтаж можна здійснити, як в допоміжних приміщеннях (балкон, комора, підвал, горище і так далі), так і в основних, помістивши установку за підвісну стелю, нішу або відкритим способом.
Ціни і характеристики припливних установок Вентс ВУТ ЕГ
| Тип | Витрата, м3/год |
Тиск, Па |
| ВУТ ЕГ 350 | 150-350 | 200-300 |
| ВУТ ЕГ 500 | 300-500 | 250-350 |
| ВУТ ЕГ 530 | 340-530 | 250-350 |
| ВУТ ЕГ 600 | 350-600 | 250-350 |
| ВУТ ЕГ 1000 | 1000 | - |
| ВУТ ЕГ 2000 | 2000 | - |
| Тип | Витрата, м3/год |
Ціна, грн |
| ВУТ ЭГ 350 | 150-350 | 47464 |
| ВУТ ЭГ 500 | 300-500 | 48178 |
| ВУТ ЭГ 530 | 340-530 | 62474 |
| ВУТ ЭГ 600 | 350-600 | 63903 |
| ВУТ ЭГ 1000 | 1000 | 83918 |
| ВУТ ЭГ 2000 | 2000 | 118228 |
Ви можете замовити установки за телефоому: 8 (044) 223-73-87
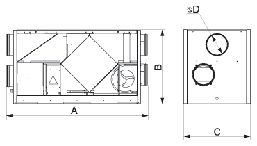
Габаритні розміри і креслення

| Тип | A | B | C | D |
| ВУТ ЕГ 350 | 960 | 555 | 500 | 125 |
| ВУТ ЕГ 500 | 960 | 555 | 500 | 150 |
| ВУТ ЕГ 530 | 960 | 555 | 500 | 160 |
| ВУТ ЕГ 600 | 960 | 555 | 500 | 200 |
Робочі характеристики установки

